BACK

We recently announced that with our largest team to date in place at BrightGauge headquarters, we will be upgrading our office space to accommodate our growing crew. With 12 employees and more coming soon, our current 1400 sq ft space is pinched to say the least. Since our team is an incredibly close group, we wanted to continue making sure that they enjoy the space where they spend the majority of their working time, and with that in mind Brian and I went on the hunt for a new home that fits our space needs and our culture.

Let me back up for a minute and explain how we got to where we are today. The prior two office leases we had signed were 1 year terms.  The first lease was 1 year because we wanted to confirm the idea of being based in Coral Gables so we didn’t want to commit long term.  Then our current lease was signed for 1 year because we weren’t sure how much space we would need as we grew.  We were focused on getting our migration done and building our product so we didn’t want to lock ourselves in long term until we were sure.

However, now as our lease was coming due we took some time to plan things out and factor in where we were going and how many people we were going to need to get there.  We love Coral Gables so with a definite location in mind and a team nearly doubled in size, we knew what square footage we needed for the next few years.  So we went to work on finding the right space for us.  

As we started our search we took inventory of the buildings that had between 2,200 and 2,600 sq ft available for 3 year lease.  We love our current building so when we heard there were several spots available we decided to focus there.  And low and behold the suite right next door to us is available and fits everything we need.  Now that we had the space, we brought in the expert Gigi Alvarez to help us design the space and we are excited to share what she came up with!


Open Office Layout

BrightGauge_open office layout

We have decided to make the new office pretty much wide open except for 1 office and 1 conference room, both with glass doors to still give a transparent feel.  Our culture is one focused on being a team and being open with each other so it’s critical to have the walls down (physically and metaphorically).  So the new office space will allow us all to collaborate more and be able listen and share information faster.


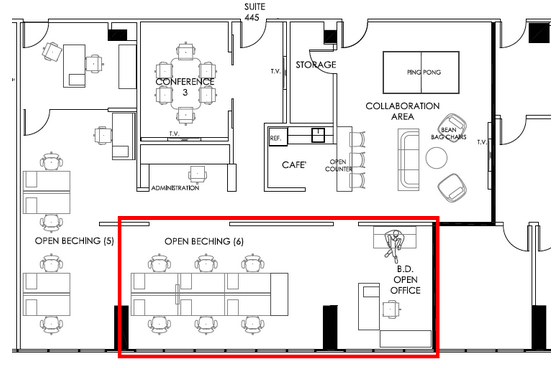
Growth Team
BrightGauge_growth team floor plan

Our Growth Team will all sit together which ensures that our Marketing, Sales, Customer Success and Data Customization Teams are within earshot of each other and are able to co-produce projects together.  Having the team close by makes it easy for those quick conversations and everyone is listening to customer conversations so people can pitch in when necessary.


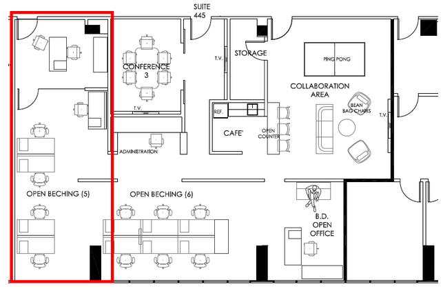
Product Team
BrightGauge_product team floor plan

The Product Team needs to sit very close to one another because they are constantly working on projects together.  So we wanted to have a design that would maximize the ease to share but not have people sitting on top of each other.  The other cool thing about the Product Team area is that they are now sitting right by the window.  In the current space they are off in the dark (usually with the lights off, by choice) but now they’ll have a nice dose of regular sunlight to brighten up their day.


Collaboration Area
BrightGauge floor plan_collaboration area

The most anticipated part of the office is by far the collaboration area.  This is where we are getting the most input from the team on what to do with the space.  From a business standpoint this is where we will get together for our Rambo Pizza meetings and group sync sessions.  Because we so often partner up across teams it’s important to have a shared space where we can work together.  Additionally it serves as a great spot for us to kick back and relax after a long week or to celebrate a big customer victory.

Stay tuned, as we’re really excited to share more as our new HQ comes together!

Free MSA Template

Whether you’re planning your first managed services agreement, or you’re ready to overhaul your existing version, we've got you covered!

Grab your copy